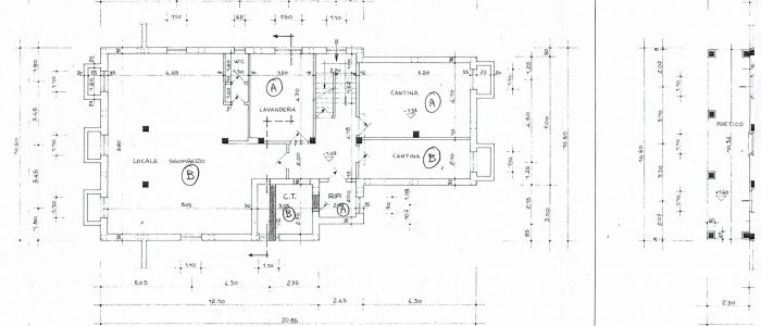
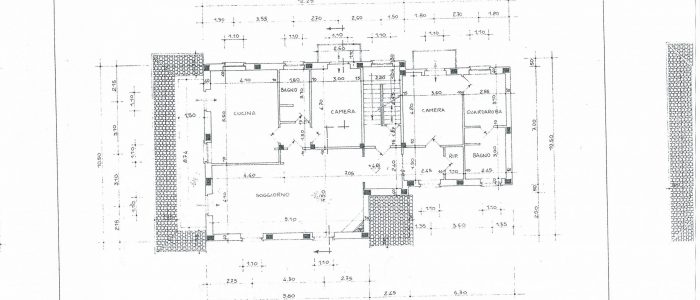
VILLASTELLONE, VIA TAVOLAZZO ANGOLO VIA SAN GIOVANNI BOSCO – ZONA CASERMA DEI CARABINIERI, Villetta bifamigliare libera su quattro lati con cortile e giardino su tutti i lati, composta da appartamento al piano terra di 114 mq ed appartamento al piano primo di 165 mq. Piano interrato con cantine, lavanderia, tavernetta e corridoio comune per complessivi 195 mq; sottotetto non abitabile di 157 mq. Esternamente facilmente divisibile. Presenti due box auto di complessivi 40 mq circa con altezza superiore 2,50 metri. All’esterno a 10 metri dalla casa, presente un terreno agricolo di circa 300 mq.
A.P.E in corso di realizzazione.
Richiesta : € 600.000,00





























